Опции :
Площадь :
Габариты :
Арх. стиль :
Добавить в избранное
Стоимость проекта:
34.000 руб.
Разделы проекта: АР, КР, ИС
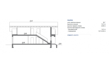
| Общая площадь: | 130 м2 |
| Габариты дома: | 6.10 x 14.30 м |
| Этажность: | 1+ Мансардный |
| Спальни: | 3 |
| Фундамент: | ленточный, ширина 500 мм, высота 300 мм с бетонными блоками 240 мм |
| Материал стен: | керамоблок 240 мм + утеплитель 120 мм |
| Перекрытия: | монолитные ж/б |
| Крыша: | мансардная |
| Кровля: | керамическая черепица или металлочерепица |
| Фасад: | штукатурка, клинкерная плитка, деревянная облицовка |
| Стиль: | Европейский |
| Гараж (1 место) | есть |
| Терраса на 1-м этаже | есть |
| Балкон | есть |
Если проект приобретается без изменений, то оплата производится в размере 100% стоимости проекта.
Если проект приобретается с изменениями, то оплата производится в размере 100% стоимости проекта и первого авансового платежа за эскизное решение, которое составляет 50% от общей стоимости всех вносимых изменений в проект. Оставшийся второй авансовый платеж в размере 50% вносится после согласования с вами эскизного решения. После оплаты второго авансового платежа и согласования эскиза мы приступаем к проработке архитектурно-строительной документации. Срок подготовки документации 15 рабочих дней с момента оплаты второго авансового платежа. Данный срок может быть уменьшен или увеличен, в зависимости от сезонности.
Пример:
Если проект стоит 30.000 руб, а стоимость его доработок оценена в 10.000 руб, то ваш первый авансовый платеж составит 35.000 руб.
Что может быть изменено?
Мы не продвигаем материалы, технологии и производителей!
Все наши рекомендации предназначены для тех, кто только хочет начинать строительство дома и стремится понять ценообразование при применении тех или иных технологий и материалов.
Большая часть наших проектов содержит монолитную плиту, которая является универсальным фундаментом и подходит под большинство типов грунта. Буронабивные сваи с монолитной лентой ростверка являются самым доступным решением, но чтобы реализовать это решение необходимо предоставить отчет геологии, который вы можете заказать у нас или в любой другой компании. Данный тип фундамента иногда не может быть применен к слишком большим и тяжелым домам. Экономия, по сравнению с плитой, достигает до 40%.
Есть огромное заблуждение в том, что на фактическую стоимость строительства дома влияет стеновой материал. Это не верно! Коробка дома – это не большой процент от всех расходов на дом. Самые большие статьи расходов – это фундамент и крыша, но даже на пироге стен можно сэкономить, если выбрать в качестве стенового материала газобетон и отделку фасада штукатуркой. Для примера, стены из газобетона дешевле чем из керамики на 20%, а отделка штукатуркой на 30-35% дешевле чем кирпичом, но и этот процент может быть уменьшен из-за выбора дорогих брендов.
Если сравнивать металлочерепицу с мягкой кровлей (гибкая черепица), то при сравнении различных производителей выяснится, что металлочерепица, как отдельный материал, будет иногда немного дороже или равна по стоимости мягкой. Складывается впечатление, что если нет разницы или она мала, то стоит выбрать мягкую кровлю. По факту, крыша из гибкой черепицы будет на 20% дороже чем из металлочерепицы, т.к. для данного типа кровельного пирога применяется OSB фанера, подкладочный ковер (доп. гидроизоляция) и прочие комплектующие.
Напишите нам!